Inner City Living close to everything.
This home is perfect for someone looking for city convenience in a quiet location, convenient to schools, shopping and medical.
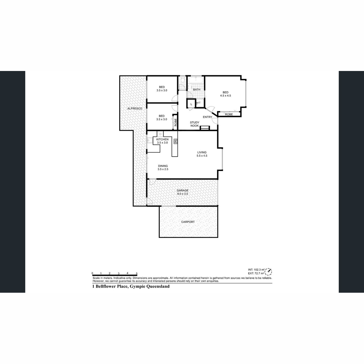
This neat and tidy brick home on a good size corner block has a perfect north easterly aspect and will be available for a new tenant early May. Raked ceilings provide a spacious welcoming atmosphere. It is ideally located 700 metres to Gympie Hospital, 850 metres to James Nash High School and 1.4 kilometres to the CBD.
Features include:
– Corner 604m2 allotment in a quiet cul-de-sac street
– Solid and well-maintained lowset brick and tile home
– Air-conditioned open plan living area with raked ceilings
– Three bedrooms, all with fans and two with built-in wardrobes
– Office Nook
– Two-way bathroom
– Private, covered entertainment area
– Tiled, single garage plus a single carport
– Garden shed
– Low maintenance property
– Pets on application
– Brand new carpets throughout
(Tenants are responsible for all utilities – water/electricity)
Application via the Apply Now button on Realestate.com or alternatively reach out for a formal application.
Our agency accepts applications via 2Apply, click APPLY NOW or enquire to receive a link for application.
To book a time to inspect, simply click on Book an Inspection Time or Email Agent to book instantly using our online system.
By registering, you will be informed of any updates, changes or cancellations for your appointment.













